广东烟草湛江市有限公司营销管理中心2022年农网终端收银一体柜物资采购项目澄清更正公告(湛江)
各投标人:
一、项目基本情况:
项目编号:YC22475054(CGP)
项目名称:广东烟草湛江市有限公司营销管理中心2022年农网终端收银一体柜物资采购项目
首次公告日期:2022年8月18日
二、更正信息:
更正事项:招标公告、招标文件
更正内容:
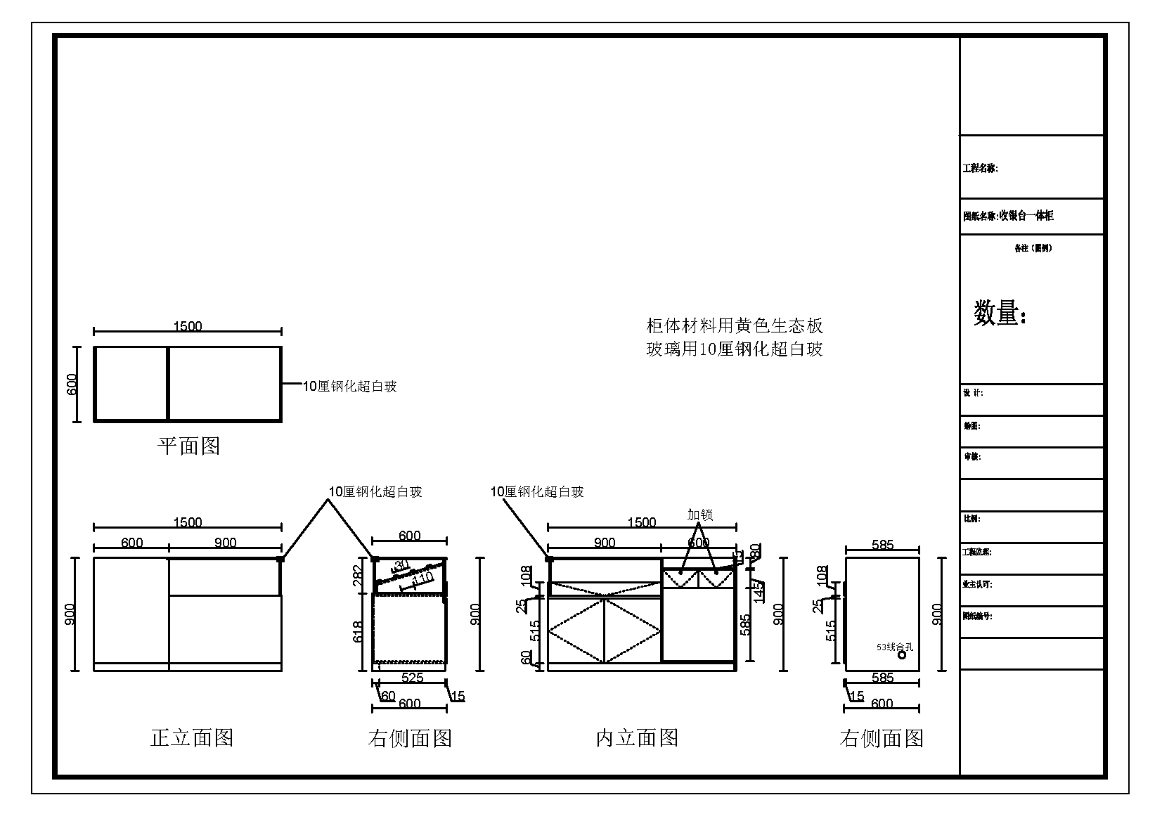
1、原招标文件:“第二部分用户需求书”“二、技术参数★”及“第四部分合同格式”“3.技术参数”中“尺寸1500mm×500mm×900mm(长×宽×高)”。
更正为:“第二部分用户需求书”“二、技术参数★”及“第四部分合同格式”“3.技术参数”中“尺寸1500mm×600mm×900mm(长×宽×高)”。
2、原招标文件:“第二部分用户需求书”“四、投标样品要求:”中“样品制作的标准和要求1500mm×500mm×900mm(长×宽×高)”。
更正为:“第二部分用户需求书”“四、投标样品要求:”中“样品制作的标准和要求1500mm×600mm×900mm(长×宽×高)”。
3、原招标文件:“第二部分用户需求书”“二、技术参数★附图”及“第四部分合同格式附图”。

更正为:“第二部分用户需求书”“二、技术参数★附图”及“第四部分合同格式附图”。

4、原招标文件:“投标截止时间及开标时间2022年09月09日15时30分”。
更正为:“投标截止时间及开标时间2022年09月19日15时00分”。
三、联系方式信息:
招标人名称:广东烟草湛江市有限公司
联系人:李先生电话:0759-2223979传真:0759-2223979
联系地址:湛江开发区人民大道中26号工业大厦第七层701-703室
本澄清公告内容与原招标文件不一致之处,以本公告为准,投标保证金截止时间相应延长,其他内容不变。
广东烟草湛江市有限公司
亿诚建设项目管理有限公司
日期:2022年09月02日
下一篇: 已经是最后一篇了 上一篇: 英德监狱外小围墙修缮工程造价服...
相关资讯
- 英德监狱外小围墙修缮工程造价服务采购项目中选结果公告(清远)
- 新丰县松园园区电力迁改项目(10kV线路)-园洞电站支线临时用电迁改工程预算编制中选结果公告(韶关)
- 广东烟草湛江市有限公司物流配送中心2022-2025年仓储及分拣设备维保服务项目中标结果公示(湛江)
- 亿诚管理参加第二届陕西省建设工程造价专业人员职业技能竞赛初赛
- 学校操场东南侧跑道地面硬化工程造价咨询中选结果公告(汕头)
- 励学楼内庭天面围墙安全防护、保管室及其它零星修缮工程造价咨询中选结果公告(汕头)
- 南朗街道生活小区污水收集改造工程(一期)监理项目中选结果公告(中山)
- 五桂山南桥白石坳村道提升工程中选结果公告(中山)
- 潮南区胪岗镇VC81新民一线改造工程项目预算审核服务中选结果公告(汕头)
- 潮南区胪岗镇U357泗和一线改造工程项目预算审核服务中选结果公告(汕头)
同类文章排行
- 广东烟草湛江市有限公司营销管理中心2022年农网终端收银一体柜物资采购项目澄清更正公告(湛江)
- 英德监狱外小围墙修缮工程造价服务采购项目中选结果公告(清远)
- 新丰县松园园区电力迁改项目(10kV线路)-园洞电站支线临时用电迁改工程预算编制中选结果公告(韶关)
- 广东烟草湛江市有限公司物流配送中心2022-2025年仓储及分拣设备维保服务项目中标结果公示(湛江)
- 学校操场东南侧跑道地面硬化工程造价咨询中选结果公告(汕头)
- 励学楼内庭天面围墙安全防护、保管室及其它零星修缮工程造价咨询中选结果公告(汕头)
- 南朗街道生活小区污水收集改造工程(一期)监理项目中选结果公告(中山)
- 五桂山南桥白石坳村道提升工程中选结果公告(中山)
- 潮南区胪岗镇VC81新民一线改造工程项目预算审核服务中选结果公告(汕头)
- 潮南区胪岗镇U357泗和一线改造工程项目预算审核服务中选结果公告(汕头)
最新资讯文章
您的浏览历史


